Apartament la parter de vânzare în Mirador del Paraiso, Benahavis
583.000 €Benahavis, 2 dormitoare, 2 băi, 125 m² construit, 30 m² teren
- Referință
- 300-01804P
- Tip
- Apartament la parter
- Locație
- Mirador del Paraiso, Benahavis
- Dormitoare
- 2
- Băi
- 2
- Băi proprii
- 1
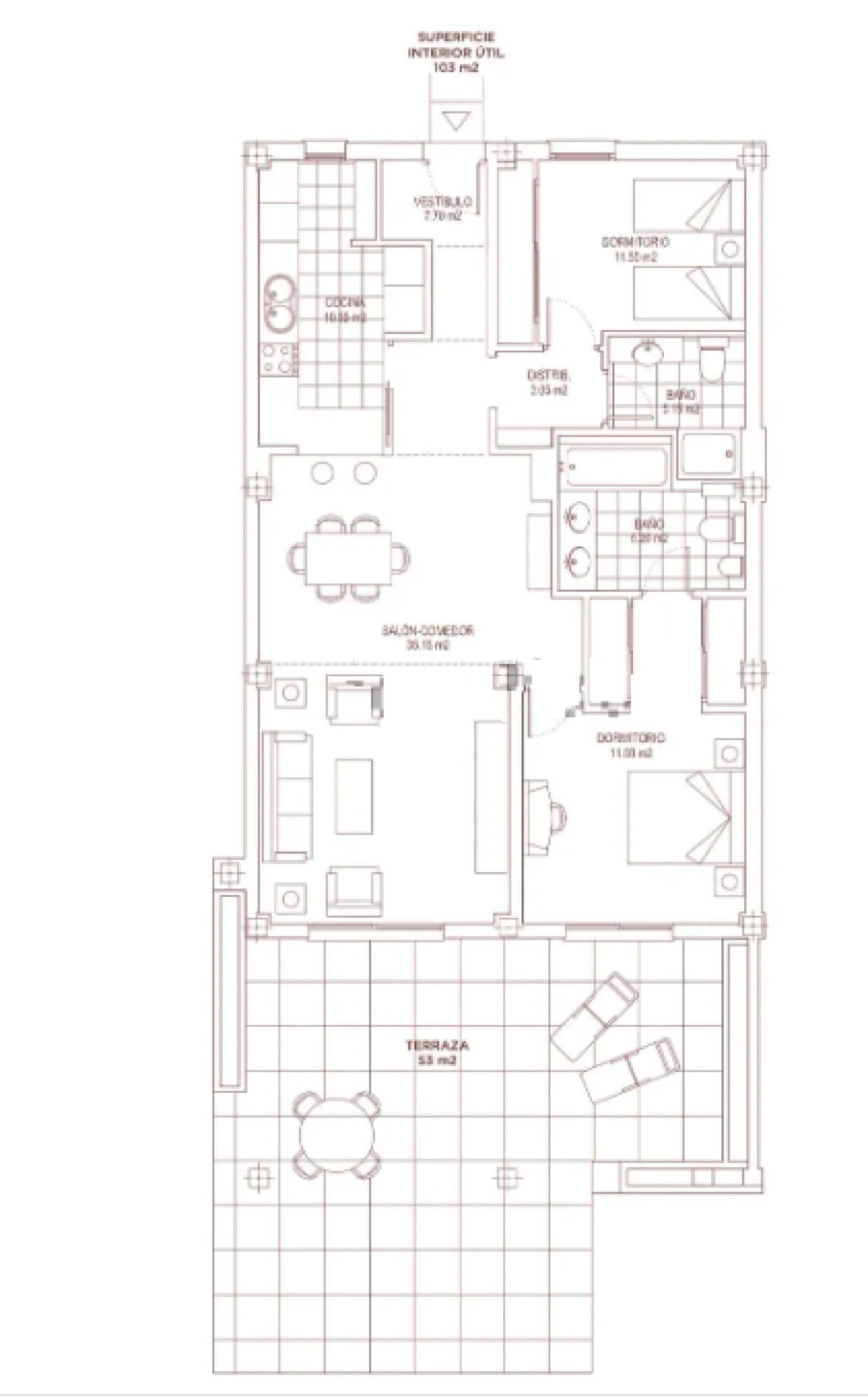
- Construit m²
- 125
- Terasă m²
- 30
- Teren m²
- 30
- An construcție
- 2.006
- Orientare
- O
Caracteristici Suplimentare
- Aer condiționat
- Alarmă
- Balcony
- Bucătărie complet utilată
- Cameră de utilități
- CloseToChildrenPlayground
- CloseToGolf
- CloseToTown
- Complet mobilat
- Comunitate cu poartă
- Dulapuri încorporate
- ExcellentCondition
- Facilități în apropiere
- Geamuri duble
- GroundFloorPatio
- InsideGolfResort
- Interfon video
- Internet – WiFi
- Lift
- Pardosealã din marmurã
- RecentlyRenovatedRefurbished
- Sală de sport
- Spălătorie
- SurveillanceCameras
- Terasa acoperită
- Terasa privată
- Transport în apropiere
- Vedere la grădină
- Vedere la mare
- Vedere la munte
- Vedere la țară
- Vedere panoramică
- WheelchairAccessible
- Încălzire prin pardoseală
Contactează-ne

