Teren cu o locație unică!!!
1.260.000 €Estepona, 228.47 m² teren
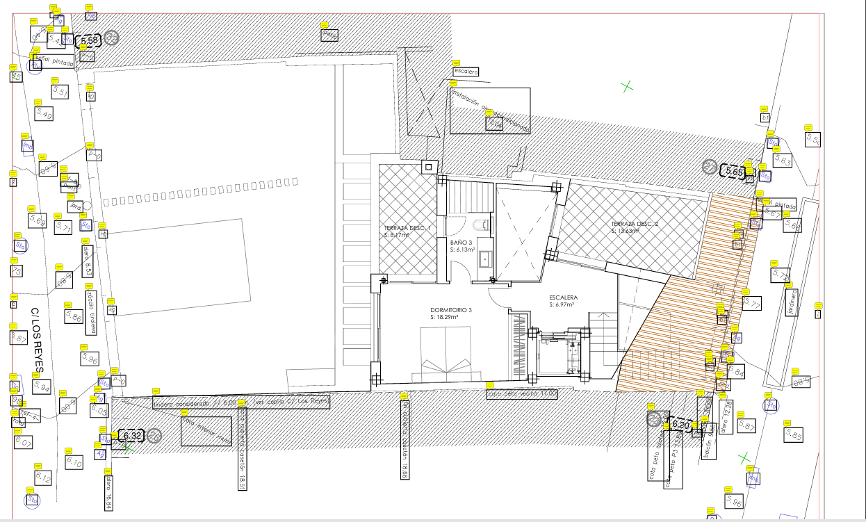
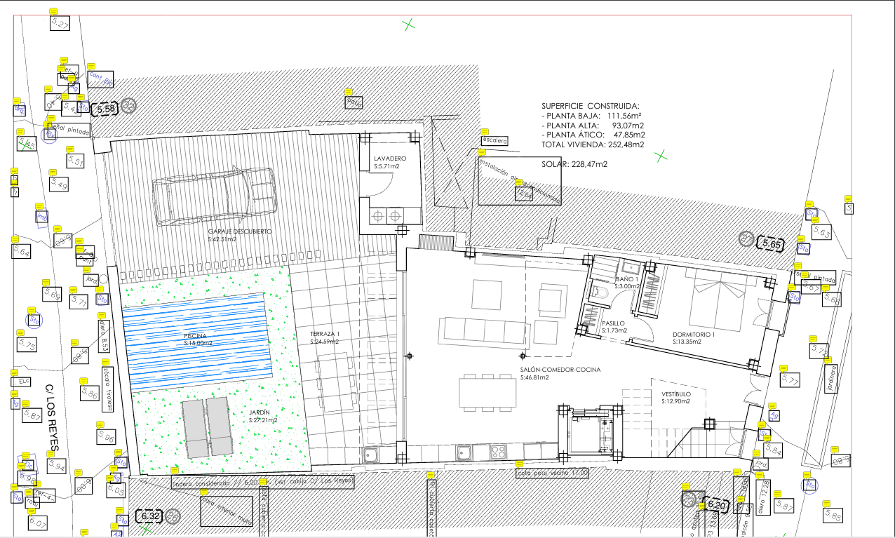
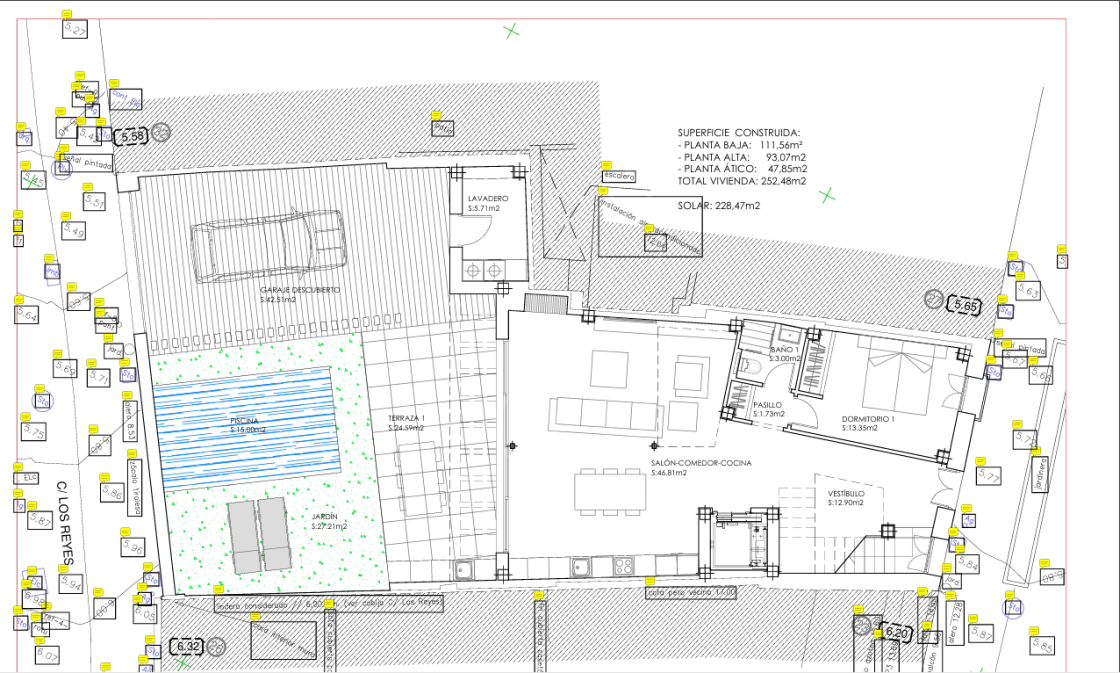
Se oferă spre vânzare un teren excepțional, remarcabil prin dimensiunile sale generoase, care permit construirea unei case unifamiliale, așa cum este prevăzut în proiect, precum și multiple alternative de dezvoltare. Opțiunile variază de la două etaje parter plus două duplexuri, la șase apartamente sau chiar un hotel boutique exclusivist.
Locația privilegiată a acestui teren îl face o adevărată bijuterie în inima centrului istoric al orașului Estepona.
Dispune de două fațade: una situată pe strada San Antonio nr. 25 și cealaltă pe strada Los Reyes nr. 28-30.
- Referință
- KE-01216P
- Tip
- Teren
- Locație
- Estepona Old Town, Estepona
- Teren m²
- 228,47
Contactează-ne
Proprietăți Similare
Estepona Old Town – Estepona Town
Teren de vânzare în Estepona Old Town, Estepona Town
- 228 m² Teren
1.260.000 €
BhI-019

