Vilă de lux complet renovată, situată ideal la o scurtă distanță de mers pe jos de centrul La Cala, plajă și golf
Oportunitate unică de a achiziționa o vilă la o distanță de mers pe jos de toate facilitățile, plajă și terenul de golf.
Vederi parțiale spre mare și terenul de golf.
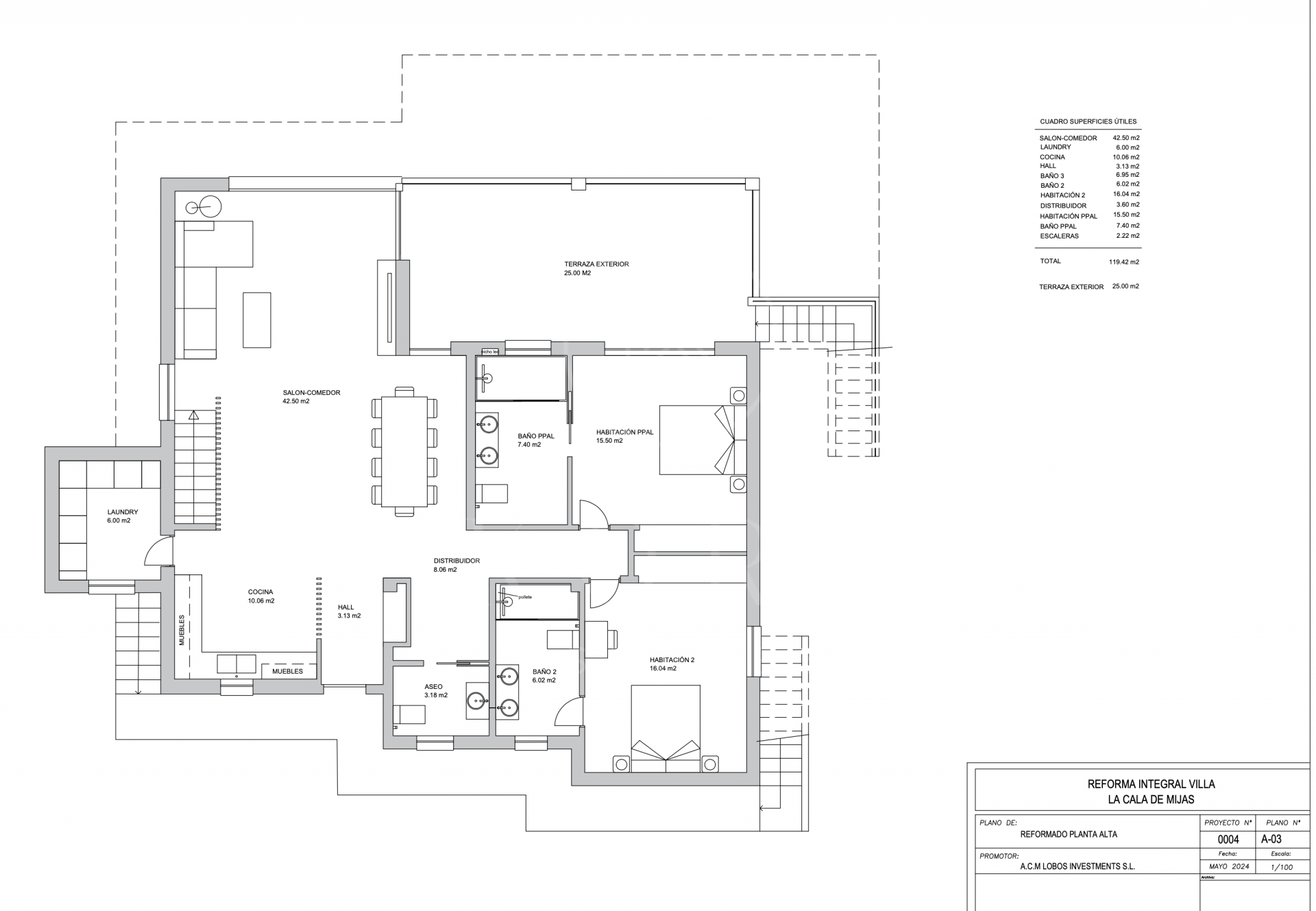
Distribuită pe 2 niveluri după cum urmează:
Nivelul de intrare cu un spațiu generos de living, bucătărie open space, 2 dormitoare cu baie proprie și 1 toaletă.
La etajul inferior se găsește o a doua zonă de living cu lumină naturală. 3 dormitoare și 3 băi. Unul dintre aceste dormitoare are acces independent, zonă de living, bucătărie și baie.
Există și o cameră pentru spălătorie la nivelul inferior.
Caracteristici cheie ale proprietății:
Ideală deoarece toate zonele principale de locuit sunt la nivelul de intrare, fără necesitatea scărilor (dormitor principal, living și bucătărie)
Intimitate totală
Situată pe o stradă liniștită, dar în același timp la mai puțin de o distanță de mers pe jos de facilități și plajă
Licență turistică în vigoare și rentabilitate ridicată. Putem trimite informații, vă rugăm să solicitați.
Vederi către terenul de golf și mare
Situată într-un cul-de-sac
- Referință
- KE-01111P
- Tip
- Vilă
- Locație
- Cala de Mijas, Mijas Costa
- Dormitoare
- 5
- Băi
- 5
- Construit m²
- 358
- Terasă m²
- 100
- Teren m²
- 915
- Taxă comunitate
- 75 €
- Taxă salubritate
- 150 €
- Impozit pe proprietate
- 1.600 €
- An construcție
- 1.982
- Orientare
- SO
Caracteristici Suplimentare
- Aer condiționat
- Aerothermics
- Alarmă
- Beci
- Bucătărie complet utilată
- Bucătărie utilată
- Cameră de utilități
- CloseToGolf
- CloseToSchools
- CloseToSeaBeach
- CloseToShops
- CloseToTown
- Dulapuri încorporate
- ExcellentCondition
- Facilități în apropiere
- GuestApartment
- IndividualUnitsAC
- Jaluzele electrice
- PartialSeaViews
- RecentlyRenovatedRefurbished
- Sală de mese
- Spălătorie
- Terasa acoperită
- Terasa privată
- Transport în apropiere
- UncoveredTerrace
- Vedere la mare
- Vedere la terenul de golf
- Încălzire centrală
Proprietăți Similare
Vilă de vânzare în Cala de Mijas, Mijas Costa
- 5 Dormitoare
- 4 Băi
- 510 m² Teren
- 400 m² Construit
Vilă de vânzare în Cala de Mijas, Mijas Costa
- 5 Dormitoare
- 5 Băi
- 915 m² Teren
- 358 m² Construit

